Rif: IMMO-117049705
FOGGIA
FOGGIA - zona Via Napoli
Sogni una villetta immersa in un oasi di tranquillità?
A pochi chilometri dalla servitissima Via Lucera ( nelle vicinanze del centro sportivo Zeligh), ideale per chi vuole allontanarsi dal caos della città ma senza dover rinunciare ai servizi, proponiamo in vendita un fabbricato in residence con ingresso autonomo dove sarà possibile costruire una villetta su due livelli, offrendo così la possibilità di personalizzare completamente gli ambienti, gli impianti e le finiture interne in base ai tuoi gusti e alle tue esigenze.
Inoltre, il fabbricato in questione prevede anche la realizzazione di 2 villette disposte su un unico livello con giardino di pertinenza e terrazzi, entrambe da completare e personalizzare, a partire dai Eu. 25.000.
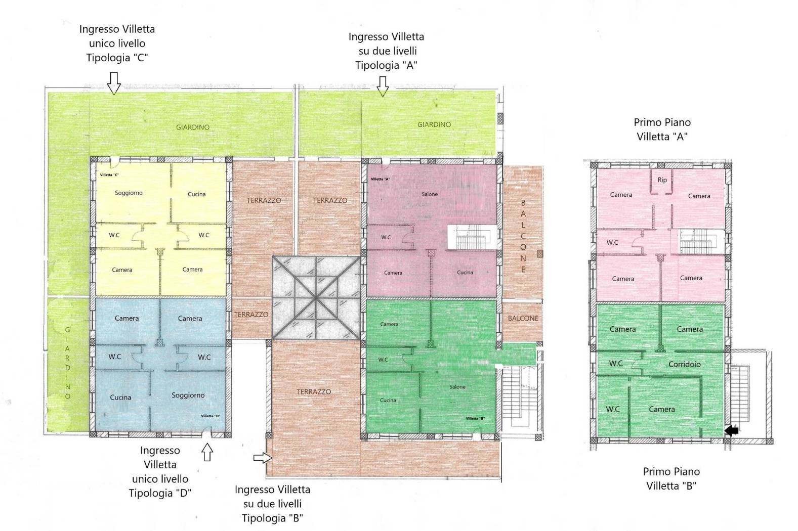
In aggiunta alle fotografie, troverai un esempio di planimetria che illustra una possibile suddivisione degli spazi, sia delle villette su due livelli che delle villette disposte su un unico piano, pensate per garantire funzionalità e comfort.
Esempio villetta su due livelli Tipologia "B"
Piano Terra: Ampio salone, cucina, studio/camera, bagno e terrazzo
Primo Piano: 3 camere da letto e doppi servizi
La costruzione è da realizzare a cura dell'acquirente anche con il supporto di professionisti qualificati.
Contattaci per fissare un appuntamento. Questo progetto è un'opportunità unica per costruire la casa che hai sempre desiderato!
A pochi chilometri dalla servitissima Via Lucera ( nelle vicinanze del centro sportivo Zeligh), ideale per chi vuole allontanarsi dal caos della città ma senza dover rinunciare ai servizi, proponiamo in vendita un fabbricato in residence con ingresso autonomo dove sarà possibile costruire una villetta su due livelli, offrendo così la possibilità di personalizzare completamente gli ambienti, gli impianti e le finiture interne in base ai tuoi gusti e alle tue esigenze.
Inoltre, il fabbricato in questione prevede anche la realizzazione di 2 villette disposte su un unico livello con giardino di pertinenza e terrazzi, entrambe da completare e personalizzare, a partire dai Eu. 25.000.
In aggiunta alle fotografie, troverai un esempio di planimetria che illustra una possibile suddivisione degli spazi, sia delle villette su due livelli che delle villette disposte su un unico piano, pensate per garantire funzionalità e comfort.
Esempio villetta su due livelli Tipologia "B"
Piano Terra: Ampio salone, cucina, studio/camera, bagno e terrazzo
Primo Piano: 3 camere da letto e doppi servizi
La costruzione è da realizzare a cura dell'acquirente anche con il supporto di professionisti qualificati.
Contattaci per fissare un appuntamento. Questo progetto è un'opportunità unica per costruire la casa che hai sempre desiderato!
Consistenze
| Descrizione | Superficie | Sup. comm. |
|---|---|---|
| Principali | ||
| Immobile - piano rialzato | 200 Mq | 200 Mqc |
| Totale | 200 Mqc | |
